Modérateurs: Le CA de l’Association HCFR, Modération Forum Home-Cinéma • Utilisateurs parcourant ce forum: Fanny53 et 17 invités

Toutes les questions que vous vous posez pour bien débuter dans le Home-cinéma

Home cinéma 5.1.2

Message » 25 Jan 2025 15:25

Bonjour à tous,
Tout nouveau et extrême débutant, je viens solliciter les experts du forum concernant un projet Home-cinéma 5.1.2. Merci par avance à ceux qui auront la gentillesse de m’aider.
Nos travaux d’extension de notre domicile arrivent à leur fin. Le projet d’installer un home-cinéma est venu après le début du chantier mais nous avons demandé à l’électricien de prévoir ce qu’il fallait en connectique comme vous pouvez le constater sur les photos. La projection se fera bien évidemment sur le grand mur blanc. Je vous joins également le plan de la pièce en question.
J’ai plusieurs questions :
- Est-ce une bêtise d’installer du Dolby Atmos étant donnée la configuration de la pièce ? Le toit est mansardé avec poutre traversante. J’avais l’idée de positionner les enceintes atmos au niveau de la poutre, dirigées vers les spectateurs qui seraient assis sur un canapé un peu en arrière de la poutre. Est-ce trop près selon vous ?
- Les enceintes arrière seraient installées sur support mural. Je souhaite les brancher sur la prise située en haut du mur.
- Je me suis raté sur le câblage car je n’ai pas prévenu suffisamment en avance l’électricien. Ça n’a pas été prévu. Il faudrait qu’il tire du câble entre l’ampli et les prises dont je parle juste au-dessus. Quel type de câble me conseillez-vous ?
- Enfin, avez-vous un avis sur ce type de kit : https://teufelaudio.fr/theater-500-surr ... -107001494
Désolé pour toutes ces interrogations, je préfère passer pour un imbécile plutôt que me planter sur toute la ligne étant donné le petit budget que cela représente.
Merci par avance
Image
Image
Image
Image
Image
bernardtampis
 
Messages: 3
Inscription Forum: 25 Jan 2025 14:41
  • offline

Message » 25 Jan 2025 15:30

Le plan de la pièce
Image
bernardtampis
 
Messages: 3
Inscription Forum: 25 Jan 2025 14:41
  • offline

Message » 25 Jan 2025 16:40

Bonjour et bravo pour ton nouveau projet... :bravo:

Par contre, personnellement, je ne commencerai pas à m'occuper de la partie sonore en premier lieu. 8)

Ce que je mettrai au point d'abord, c'est la partie "projection" de l'image.
- Faire des plans épures de toute cette partie afin de bien se représenter dans l'espace comment vont interagir : ton écran, le vidéoprojecteur, ton mobilier, les structures de ta maison, ...

Lorsque cela est verrouillé, cela te permettra de mieux positionner les autres éléments de ta chaîne de diffusion. Ensuite de voir comment tu vas pouvoir innerver tous tes cheminements de câble.

Enfin, c'est comme cela que je pratiquerai... :siffle:
Ptipilot
 
Messages: 469
Inscription Forum: 02 Juin 2024 12:05
Localisation: 95
  • offline

Message » 26 Jan 2025 10:39

Bonjour Ptipilot,

Merci pour ta réponse :) .

Je pensais installer au mur une télé >85 pouces sur le grand mur blanc que tu peux voir sur la troisième photo (il est vrai que je parle à tord de vidéoprotection dans mon premier message) avec un meuble en dessous pour l'ampli et les enceintes centrales. Il y aurait deux enceintes colonnes et un caisson de basse immédiatement à coté.
Je suis surtout dans le flou concernant les enceintes atmos et arrière dans leur positionnement notamment.

Bonne journée :wink: ,
bernardtampis
 
Messages: 3
Inscription Forum: 25 Jan 2025 14:41
  • offline

Message » 26 Jan 2025 11:24

bonjour
https://www.dolby.com/siteassets/about/support/guide/setup-guides/5.1.2-overhead-speaker-placement/5_1_2_overhead_speakers_setup.pdf

pour les surround je voie que derrière la porte fenêtre en positionnement, après tu risque d être trop loin.
pour les atmos tu est dans les clous, a part peux être la hauteur comme la plupart d entre nous.
Tony 61
 
Messages: 3373
Inscription Forum: 30 Oct 2017 21:32
Localisation: ORNE
  • offline

Message » 26 Jan 2025 11:55

Alors, je vais te faire une réponse de vieux Con que je suis!... :oldy:
( Et, qui a commencé le HC avec l'arrivé du Dolby Prologic en 1985 du millénaire dernier...) :siffle:


Tu as une superbe salle que tu viens d'acquérir...
Maintenant, rien ne sert de courir sur un projet de HC. :zen: :zen: :zen:

Tu peux très bien acheter qu'elles pièces "bas de gamme" (Grand TV, une barre de son...) pour te faire plaisir quelles années. Tous c'est éléments, tu les considères comme jetables pour ton projet final de HC.

Parallèlement, tu conçois ton HC et tu vis dans ta nouvelle pièce en ayant toujours ton projet en objectif final.

Pourquoi, je te dis tout cela?...
Pour moi, avec une telle pièce, je partirai vers une configuration 7.1.6., un vidéoprojecteur 4K et un grand écran motorisé.
C'est ce que je suis en train de finaliser chez moi dans mon salon/salle à manger...

Toutes les enceintes du Bed sont très facilement implantables chez toi, seul l'Atmos est à réfléchir un peu, mais il y a des solutions qui existent. :wink:

Le point épineux de l'affaire, c'est le budget!...
C'est toujours le nerf de la guerre...

Là, je ne suis pas à ta place!... :P :P :P

Pour ce type de projet, il faut attendre d'avoir la masse monétaire sur ses comptes (plusieurs dizaine de KEuros...) et débloquer, le projet en une seule fois... Qu'a ce moment là!... :mdr:
Sinon, on ne fait que des petits bouts et à la fin, nous sommes toujours à recherche de la cohérence.
Suffit de lire certains posts de ce forum!... :wink:


By the way!...
Au final, l'écran de cinéma, je le ferai descendre devant ta grande baie vitrée... :siffle: :siffle: :siffle:
Dernière édition par Ptipilot le 26 Jan 2025 12:21, édité 6 fois.
Ptipilot
 
Messages: 469
Inscription Forum: 02 Juin 2024 12:05
Localisation: 95
  • offline

Message » 26 Jan 2025 12:09

Plein de bon sens, ce dernier commentaire ! Mieux vaut débuter par un 5.1 « réaliste » puis, au fur et à mesure, monter en gamme. De toute évidence, l’approche acoustique de la pièce n’a pas été abordée pour le moment, ce qui est plus que souhaitable. Avant de mettre tout plein d’euros dans une installation plus ou moins satisfaisante, ce point majeur est à préciser. D’autant que l’on voit plein de baies vitrées qui auront un impact difficile à gérer. Avant de démarrer sur du matériel plutôt cher, autant expérimenter. D’autant que le kit proposé est plutôt en entrée de gamme…

Prévoir budget en conséquence.
phil974
 
Messages: 10865
Inscription Forum: 18 Juin 2003 7:31
Localisation: Saint Gilles les Hauts (La Réunion)
  • offline

Message » 26 Jan 2025 12:11

faisable, mais les surround back seront trop écarter dans l absolue a cause de la baie vitré.

a part partir d une page blanche, il y aura toujours des compromis :wink:

c est clair que il y a du boulot sur l acoustique.
Tony 61
 
Messages: 3373
Inscription Forum: 30 Oct 2017 21:32
Localisation: ORNE
  • offline

Message » 26 Jan 2025 12:52

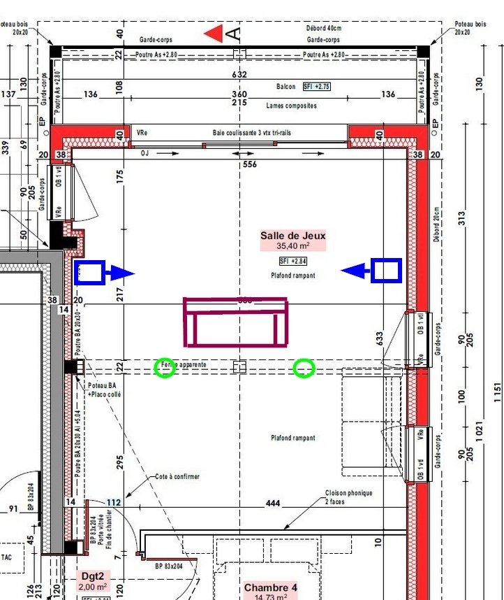
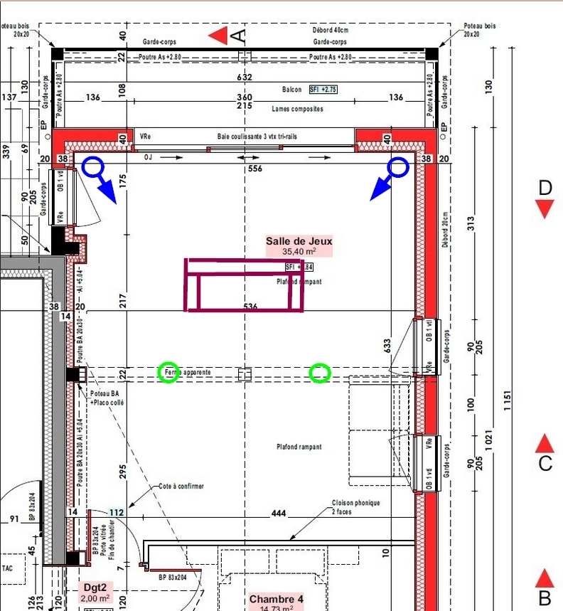
Mon humble avis, remarques et réflexions...

En fonction d'où tu positionneras ton canapé...

Environ 4m du mur blanc:
En vert: Atmos sur la ferme, dirigées vers le bas.
En bleu: Surround, mais PAS les dipôles du pack, plutôt des biblios voire les Atmos, ok elles sont peut-être un peu loin, mais cela sera corrigé par l'ampli.

Image

Environ 3m:
En vert: Atmos sur la ferme, dirigées vers le bas.
En bleu: Surround, mais là aussi je ne vois PAS les dipôles.

Image

Maintenant, comme dit précédemment, tout est une question de budget...
Ne pas voir trop petit pour l'ampli qui sera le coeur de l'instal'
Soigner la centrale, c'est 75% de la bande son, regarder à la cohérence des hp avec les colonnes.
Vu les longueurs, pour les câbles, je ne descendrais pas sous les 2x2.5mm²
Pour des raisons de budget, tu peux aussi prendre des enceintes Atmos au lieu des biblios à l'arrière, pour autant qu'elles approchent les 80-100hz, qui sera la fréquence de coupure du sub.
Penser à un tapis bien épais devant le canapé.
duf666
 
Messages: 1740
Inscription Forum: 11 Mai 2011 18:07
Localisation: Frontière B-L-F
  • offline

Message » 26 Jan 2025 13:14

ta position a 4 m est éliminer d office pour moi, bcq trop de compromis

avec une telle pièce cela serait dommage
Tony 61
 
Messages: 3373
Inscription Forum: 30 Oct 2017 21:32
Localisation: ORNE
  • offline

Message » 26 Jan 2025 14:07

L’intitulé « salle de jeux » est contradictoire avec l’idée salle dédiée pour HC. Outre le problème acoustique, il faut aussi prévoir l’occultation de la pièce pour l’utilisation HC la journée. Et sûrement aussi, la climatisation de la pièce sauf si climat très froid. Au stade actuel, je me poserais avant d’aller plus loin ! Il conviendrait sûrement de réfléchir à l’usage de la pièce et de ses variantes. Là, ça part passablement de travers… Dommage car la pièce est vraiment sympa.
phil974
 
Messages: 10865
Inscription Forum: 18 Juin 2003 7:31
Localisation: Saint Gilles les Hauts (La Réunion)
  • offline

Message » 26 Jan 2025 15:10

je pense pas que l idée de départ c était une salle dédié, et l est elle toujours :wtf:
Tony 61
 
Messages: 3373
Inscription Forum: 30 Oct 2017 21:32
Localisation: ORNE
  • offline

Message » 28 Jan 2025 7:02

Tony 61 a écrit:je pense pas que l idée de départ c était une salle dédié, et l est elle toujours

De toute évidence la pièce est "généraliste" et répond à plusieurs usages. Avec tous ces ouvrants et une pièce conçue visiblement pour être largement ouverte, l'ambiguïté pour la partie HC devient importante. Une réflexion globale semble nécessaire, quitte à recloisonner en partie.
phil974
 
Messages: 10865
Inscription Forum: 18 Juin 2003 7:31
Localisation: Saint Gilles les Hauts (La Réunion)
  • offline

Message » 28 Jan 2025 11:45

phil974 a écrit:De toute évidence la pièce est "généraliste" et répond à plusieurs usages. Avec tous ces ouvrants et une pièce conçue visiblement pour être largement ouverte, l'ambiguïté pour la partie HC devient importante. Une réflexion globale semble nécessaire, quitte à recloisonner en partie.

Effectivement, dans ma réponse précédante, je suis parti sur une pièce exclusivement HC.
L'heureux propriétaire de celle-ci a peut être d'autres envies!... :siffle: :siffle: :siffle:

Mais, si celle-ci est uniquement HC, ne faut pas la cloisonner... Elle est très bien comme cela!... :ane:
Des solutions d'occultation existent et avec un bon projecteur, c'est bon. :bravo:
Ptipilot
 
Messages: 469
Inscription Forum: 02 Juin 2024 12:05
Localisation: 95
  • offline

Message » 28 Jan 2025 12:26

On est bien d’accord. De toute évidence, il y a une lecture incomplète du projet, par méconnaissance de l’univers du HC qui légitime la demande de renseignement initiale. La salle est super sympa, elle est plus ou moins adaptée au HC, c’est évident et perfectible.
phil974
 
Messages: 10865
Inscription Forum: 18 Juin 2003 7:31
Localisation: Saint Gilles les Hauts (La Réunion)
  • offline


Retourner vers Je débute

 
  • Articles en relation
    Dernier message