Modérateurs: Modération Forum Installations, Le CA de l’Association HCFR • Utilisateurs parcourant ce forum: CDGG, Gort'h, laurentp, porciprince, Sebama, Sylvourara, TiBouiBoui et 70 invités

Les installations Home-Cinéma dédiées de la communauté HCFR

Salle HC de Nexus44 17m²

Message » 23 Juin 2023 11:57

Bonjour à tous,

Je m’appelle Damien et j’habite à Nantes.
Je me lance donc à mon tour dans la construction d’une petite salle dédié.
Eh oui à force de fouiner sur internet et de tomber sur des forums comme celui-là on a envie de se lancer. Toutes vos installations sont plus belles les unes que les autres et font rêver.

Il y a quelque année maintenant je m’étais inscrit sur le forum Allinbox et j’avais fabriquer mon vidéoprojecteur (Ecran Hami 8, lentille, miroir, lampe avec balast…), cela ne me rajeunie pas et j’avais dit, que si un jour j’ai la possibilité de crée une petite salle de cinéma je le ferais.

Allez go.

La salle dédiée sera à l’étage (aménagement de comble) et aura comme superficie a peut prêt 17m² après isolation.

Aujourd’hui coté hifi & vidéo je n’ai rien, mais je pense partir sur :
- 3 x 100IW LCR5
- 2 ou 4 x 100 ICW5 (Surround ou Atmos)
- Ampli - DENON AVC-X3800H
- Vidéoprojecteur – Benq W4000I

Point de départ:

Avec main d'oeuvre
Image

Image

Image

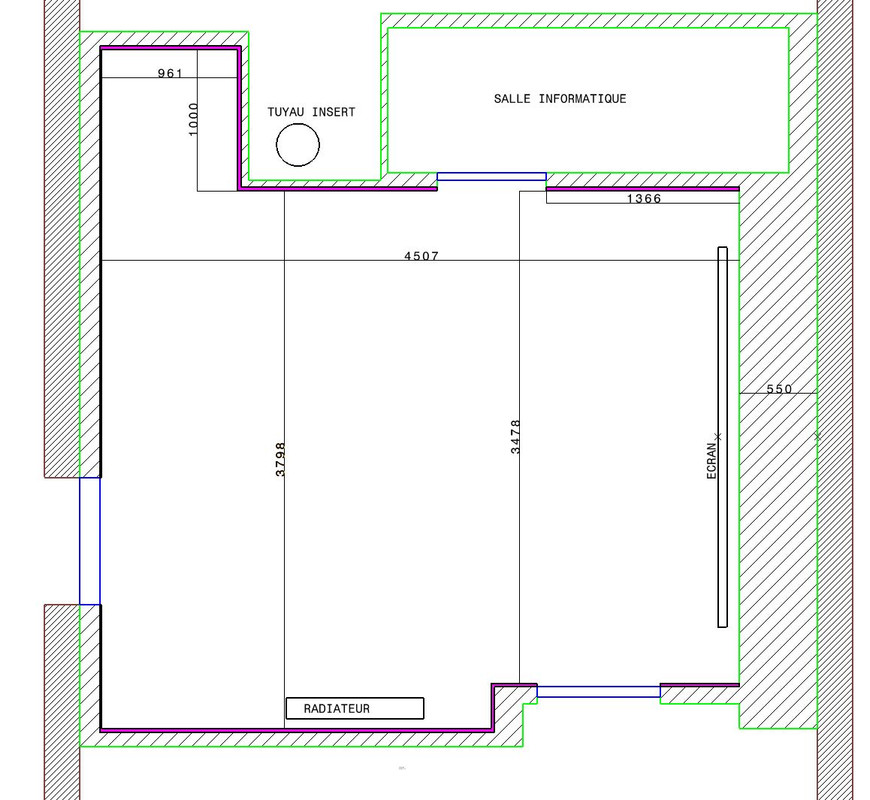
Plans:
Image

Disposition Enceinte avant
Image

Etat actuelle:
Image

Image

N'hésiter pas a critiquer, cela ne pourra être que bénéfique.
Merci
Nexus44
 
Messages: 35
Inscription Forum: 13 Sep 2021 13:03
Localisation: Nantes
  • offline

Message » 24 Juin 2023 15:33

Bonjour ... bon courage pour la réalisation de ton projet en famille ...

Les 3 enceintes avant seront un peu " faible" je pense , vu leurs HP de 13 cm même si tu a un bon caisson
ou
2 IW LCR5 droite / gauche + 1 Centrale IWLCR6 ; fera plus ressortir les voix ( des aussi )
80% de la bande son des Vod passe par cette enceinte en 5.1

Enceintes d effets : Elipson IC6 ; pas grave si de marque différente des avants ...

-------- Autre possibilité Triangle LCR7 https://www.trianglehifi.fr/products/enceinte-encastrable-lcr7-secret

Quelle "matière" et taille d écran tu prévois ..?
HADSIDI
 
Messages: 1450
Inscription Forum: 22 Mai 2016 0:26
Localisation: landes
  • online

Message » 24 Juin 2023 17:34

- Ampli - DENON AVC-X3800H
- Vidéoprojecteur – Benq W4000I
avec du ""matos ""comme ça sur que je fais un 7.1 mini voir 7.1.2 tire les cables pour les atmos mois j 'en est mis 4 dans ma salle ciné des large bands de 17cm a 20 euros et
dans mon bureau ( 5.1.2 ) j 'ai branché sur mon denon 1700h les .2 aux plafond et franchement c'est un plus
le projo coute 3000 euros donc ne pas ""négliger "" les LCR
pereti
 
Messages: 3980
Inscription Forum: 03 Oct 2017 14:45
Localisation: Vendée
  • offline

Message » 24 Juin 2023 23:01

Salut,
Pour une salle de cette dimension, je n'hésiterais pas un seul instant,
et je partirais sur une scène frontale active :wink:
Pour le même prix que les Focal 100 IW LCR5 (299 EUR)
https://www.son-video.com/article/encei ... 00-iw-lcr5
Tu pourrais avoir ça (par exemple) :

Tannoy Gold 8 :love: :love:
Image

https://www.thomann.de/fr/tannoy_gold_8.htm
Et je peux te dire que le rendu sonore serait à des années lumières de celui des simples LCR5 ...
La Tannoy, ce n'est qu'un exemple.
Il y a plein de constructeurs qui savent faire des enceintes de ce type (2 voies, 2 amplis intégrés, filtrage actif, prix serré).
En utilisant des moniteurs de studio, tu basculerais dans un autre monde.
dr rotule
Contributeur HCFR 2024
Contributeur HCFR 2024
 
Messages: 14395
Inscription Forum: 14 Nov 2004 0:23
Localisation: Seine et Oise
  • online

Message » 25 Juin 2023 11:17

Moi j'aime bien le choix de l'encastré, pour plusieurs raisons :

C'est plus esthétique (avis personnel)
Moins d'encombrement
On profite du volume de la cloison pour de meilleures basses (c'est le cas chez moi)
On peut les mettre facilement derrière un écran de projection
laurentp
 
Messages: 957
Inscription Forum: 13 Juil 2001 2:00
Localisation: Rouen
  • online

Message » 25 Juin 2023 15:29

laurentp a écrit:Moi j'aime bien le choix de l'encastré, pour plusieurs raisons :

C'est plus esthétique (avis personnel)
Moins d'encombrement
On profite du volume de la cloison pour de meilleures basses (c'est le cas chez moi)
On peut les mettre facilement derrière un écran de projection


Bonjour ...C est vrai ; à juste avoir une toile d écran transonore

On peut se faire une pièce ciné pour pas trop cher suivant nos moyen .....

https://youtu.be/OLBgrn10cbE

Le matériel , déco ; est suivant les goûts de chacun ....forcement ; bien en discuté dans le calme avec sa famille ; proches ...pour le choix

Il aussi l isolation , traitement acoustique ....Mais là , Nexus44 est doué et bien "calé "
HADSIDI
 
Messages: 1450
Inscription Forum: 22 Mai 2016 0:26
Localisation: landes
  • online

Message » 26 Juin 2023 14:11

Merci a tous de me lire et de vos retours.

Pour être honnête je me lance dans ce projet sans avoir l’oreille et les connaissances que vous pouvez avoirs. J’ai lu comme beaucoup, le projet de lolo et je m’appuis énormément dessus.

Pour compléter un peut mon projet.

Coté isolation :
- Mur écran : Style THX laine de verre sur 55mm de profondeur avec châssis bois pour intégrer les 3 enceinte avant et le sub. Molleton et tissus tendus pour finir.
- Mur Coté radiateur : Isolation laine de verre 140mm + Doublage placo (x2)
- Mur du fond : Isolation laine de verre 140 + placo
- Mur coté Salle informatique : Isolation laine de verre 140mm sur la première moitié de la pièce + Doublage placo (x2). La partie arrière à proximité de mon conduit cheminer est isoler avec laine de roche 60mm (anti-feux) + Doublage placo (x2)

Au sol : Dalle béton / laine de verre de 100mm + osb18
Plafond : Dalle de plafond acoustique Tonga / vide d’air / OSB 12mm / laine de verre 300mm

La zone de conduit de cheminé et des portes me fait un peux peur pour la résonnance.
La porte coté radiateur est une porte acoustique 23 db de chez Bricoman, en revanche la porte du local technique est une porte a 40 euros… Certainement prévoir plus tard de l’isoler.

Quand a la finition je pense rester sur le standard moquette noire au mur et moquette rouge au sol.
Nexus44
 
Messages: 35
Inscription Forum: 13 Sep 2021 13:03
Localisation: Nantes
  • offline

Message » 26 Juin 2023 14:57

Je pensais être large avec mes 3 LCR5, même avec ma petite pièce…
Donc coté enceinte je repars de zéro.

Des enceintes de monitoring, je ne connais pas du tout. J’avais lu un post sur ce forum ou il en parlait, mais j’ai l’impression que très peu de personnes partait sur cette alternative, ou les personnes qui franchisait le pas , voulais aussi un peu d’Hi-fi.
Je vais voir si à Son-Video à Nantes ils ont une zone d’écoute.
Nexus44
 
Messages: 35
Inscription Forum: 13 Sep 2021 13:03
Localisation: Nantes
  • offline

Message » 26 Juin 2023 15:27

Nexus44 a écrit:Je pensais être large avec mes 3 LCR5, même avec ma petite pièce…
Donc coté enceinte je repars de zéro.

Des enceintes de monitoring, je ne connais pas du tout. J’avais lu un post sur ce forum ou il en parlait, mais j’ai l’impression que très peu de personnes partait sur cette alternative, ou les personnes qui franchisait le pas , voulais aussi un peu d’Hi-fi.
Je vais voir si à Son-Video à Nantes ils ont une zone d’écoute.

Je regarde beaucoup de concerts, mais je n'écoute pas de hifi en stéréo :lol:
Je lis "Style THX laine de verre sur 55mm de profondeur". C'est réellement 5.5cm ou bien est-ce que tu as fait une faute de frappe, et ce serait 55cm ?
Si c'est le cas, il n'y a aucun problème pour gérer l'éventuelle profondeur des enceintes.
Dès lors, pourquoi choisir des encastrables ?
A titre d'information, pour obtenir une qualité de son équivalente à celle d'un moniteur de studio, tu dois multiplier le prix par un facteur compris entre 10 et 100 si tu utilises des enceintes dites grand public.
dr rotule
Contributeur HCFR 2024
Contributeur HCFR 2024
 
Messages: 14395
Inscription Forum: 14 Nov 2004 0:23
Localisation: Seine et Oise
  • online

Message » 26 Juin 2023 15:43

Oui c’est bien une faute de frappe, la profondeur est bien de 55cm.
Le coté encastrable est surtout pour une facilité de mise en place, sinon aucune contre-indication pour prendre des enceintes avec une profondeur plus grande. Il y a juste à l’endroit de mon conduit ou je proscris l’encastrable.

De l’autre côté de la pièce , j’aménage aussi un coté détente avec snooker et une zone ou va se trouver ma platine Vinyle. Je m’étais fait un petit cadeau il y a quelque année avec une platine Rega Planar 3, ampli Rega Brio et enceinte Dynaudio E20.
Nexus44
 
Messages: 35
Inscription Forum: 13 Sep 2021 13:03
Localisation: Nantes
  • offline

Message » 26 Juin 2023 20:11

Nexus44 a écrit:Je pensais être large avec mes 3 LCR5, même avec ma petite pièce…
Donc coté enceinte je repars de zéro.


Quel est ton budget / enceinte ?
laurentp
 
Messages: 957
Inscription Forum: 13 Juil 2001 2:00
Localisation: Rouen
  • online

Message » 27 Juin 2023 8:44

laurentp a écrit:
Nexus44 a écrit:Je pensais être large avec mes 3 LCR5, même avec ma petite pièce…
Donc coté enceinte je repars de zéro.


Quel est ton budget / enceinte ?


Si j'avais fait un budget, ma femme ne m'aurais jamais permis de faire la salle de cinéma :D .
J'achète au fur et à mesure.
Je suis ouvert aux propositions en fonction de la taille de ma salle.
Qd je dis que je repars de zéro voici les questions que je me pose.
5.1 ou 7.1?
Atmos ?
Pour le frontal faut-il partir sur des enceintes de monitoring comme le propose "dr rotule", car j'avoue qu'avec les installations de salon (barre de son type Bose) les voix ne ressortent pas assez et je m'en plains.
Mais d'un côté j'aime bien les films style Marvel qui envoi.
On peut partir sur 2500 euros l'ensemble avec Sub.
Nexus44
 
Messages: 35
Inscription Forum: 13 Sep 2021 13:03
Localisation: Nantes
  • offline

Message » 27 Juin 2023 12:56

On peut partir sur 2500 euros l'ensemble avec Sub.
:D :D ça va
Qd je dis que je repars de zéro voici les questions que je me pose.
5.1 ou 7.1?
Atmos ?
moi je ""tire "" les cables pour du 7.1.4 et je prévoie les emplacements des futures enceintes
j 'achète les 5.1 et je me fais une ""cagnotte"" pour le reste au cas ou :ane: :ane:
pereti
 
Messages: 3980
Inscription Forum: 03 Oct 2017 14:45
Localisation: Vendée
  • offline

Message » 27 Juin 2023 14:13

Si tu restes sur l'idée des enceintes encastrées, attention au court-circuit acoustique !
Normalement, ce type d'enceinte s'utilise sur une cloison "pleine" en placo.
Tu souhaites, avec raison, faire un mur frontal en LDR.
Le souci, c'est que les sons graves des enceintes encastrées vont être fortement atténués, car il n'y aura plus l'effet baffle infini :grad:
dr rotule
Contributeur HCFR 2024
Contributeur HCFR 2024
 
Messages: 14395
Inscription Forum: 14 Nov 2004 0:23
Localisation: Seine et Oise
  • online

Message » 27 Juin 2023 14:38

On abandonne les encastrables. Je le faisait par simplicité de montage. Faire des niches ne me dérange pas.
Je regarde les enceintes monitoring, j’ai écouté la vidéo que tu avais poster ou il la comparait avec la Focal 80. Mais le problème est pour la distance avec la toile. Mettre la toile a plus de 40cm du mur Frontale ne m’arrange pas.
Et les toiles tissé serais de moins bonne performance...
Samedi je vais me déplacer chez son-video pour avoir un avis de plus.
Nexus44
 
Messages: 35
Inscription Forum: 13 Sep 2021 13:03
Localisation: Nantes
  • offline


Retourner vers Installations HC dédiées

 
  • Articles en relation
    Dernier message