Depuis quelques temps, à la fois pour assouvir ma soif de création mais aussi pour mettre en oeuvre certains principes techniques, j'ai bien envie de concevoir une enceinte 2-voies passive très peu chère mais avec un résultat espéré beaucoup plus ambitieux que ce qu'on pourrait en attendre a priori.
Hormis les aspects techniques qualitatifs habituels, le focus sera mis sur la bande passante, la réduction des distos et l'énergie hors-axe. Elle sera adaptée à une écoute domestique à une distance de 1.5 à 3M environ.
Les hps seront ceux-ci: woofer-médium Dayton Audio SIG150-4 et tweeter Dayton Audio ND25fw-4 (le même que celui utilisé dans HCFR H218):
https://www.audiophonics.fr/fr/grave/da ... rhQSuTlTUW
https://www.audiophonics.fr/fr/tweeter/ ... _search=fs
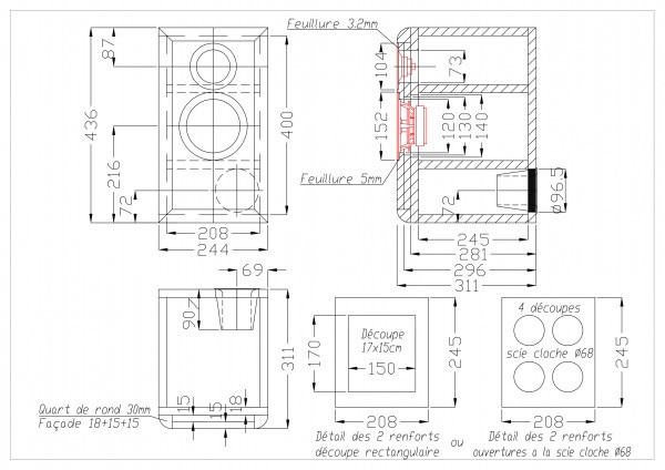
La charge sera un BR optimisé dans une vingtaine de litres, soit en format fine colonne, soit bibliothèque. Fabrication simple, forme parallélépipédique traditionnelle pour les deux versions; seules contraintes: HPs montés dans feuillure et arêtes arrondies sur la biblio.
Mais avant de me lancer, j'aimerais savoir si quelqu'un serait intéressé à en construire une paire (sous quel format?), sachant que personnellement je ne construirai qu'une enceinte sous forme de prototype because j'ai déjà bien assez de paires d'enceintes pour mon usage personnel.
Dites-moi.
Développement terminé. Je posterai ici, progressivement, toutes les infos pour la construction.
- woofer-médium Dayton Audio SIG150-4 et tweeter Dayton Audio ND25fw-4/ Approvisionnements francophones éventuels: Audiophonics, Compagnie Acoustique de Belgique...
- Event Monacor BR70H, longueur réduite à 9cm à/p de l'extérieur de la trompette. Event alternatif (validé): bi-trompette en impression 3D, contacter membre HCFR Alain07
- Bornier simple câblage, câbles au choix, sections conseillées: 1.5mm pour le tweeter, 2.5mm pour le mid-woofer
- Toutes parois en mdf ou contre-plaqué de qualité en 18mm, sauf baffle avant: Sandwich de 15+15+18mm (ou 30+18). Arêtes: quart de rond de R=30mm, tolérance +/- 10%. Pensez bien au fait que si vous utilisez des baguettes, l'épaisseur du contre-baffle devra obligatoirement être identique au rayon du quart-de-rond.
- 2 renforts horizontaux, troués sur leur demi-surface: découpe rectangulaire ou, mieux, 4 ronds à la scie-cloche.
- Absorbant : 1 sac de Visaton absorbant laine polyester/dacron (125gr); placement: post181587341.html#p181587341
Composants filtre:
- selfs à air, sauf celle du mid-woofer; respecter les résistivités.
- condensateurs: bas de gamme Polypropylène tolérance max: 5%, MKT possible pour le 22µF du mid-woofer.
- résistances métal ou céramique, peu importe.
2 filtres, fonction de l'environnement. Je conseille de d'acheter les 2 condos C6, seule différence entre les 2 filtres, afin d'être sûr du choix final. J'ai rajouté un circuit de linéarisation de l'impédance globale pour utilisation avec amplis à tubes (convient aussi pour les transistors):
Le plan de construction (merci à notre ami Sylvain (tracerbox)





